Reserviert

Angebautes Haus

CH-1791 Courtaman, Route de Hintere Motta 5

Preis auf Anfrage

Beschreibung

Eigenschaften

Umgebung
Dorf
Villenviertel
Ländlich
Geschäfte
Bank
Post
Restaurant(s)
Apotheke
Bahnhof
Bushaltestelle
Kinderkrippe
Kindergarten
Primarschule
Freibad
Aussenbereich
Balkon(e)
Terrasse(n)
Garten
Begrünung
Gedeckter Parkplatz
Innenbereich
Offene Küche
Separate WC's
Gäste-WC
Keller
Schutzraum
Abstellraum
Unmöbliert
Wasserenthärter
Dreifachverglasung
Hell
Ausstattung
Möblierte Küche
Kochherd
Glaskeramik
Backofen
Kühlschrank
Tiefkühler
Geschirrspüler
Anschlüsse für Wasch-Trocken-Säule
Dusche
Badewanne
Kabelfernsehen
Photovoltaik-Paneele
Internetanschluss
Elektrische Rollläden
Gegensprechanlage
Boden
Nach Wahl
Zustand
Neu
Besonnung
Optimal
Günstig

Angaben

Kategorie
Angebautes Haus
Referenz-Nr.
1791.C
Anzahl Zimmer
5.5
Anzahl Schlafzimmer
3
Anzahl Wohnungen
1
Anzahl Badezimmer
4
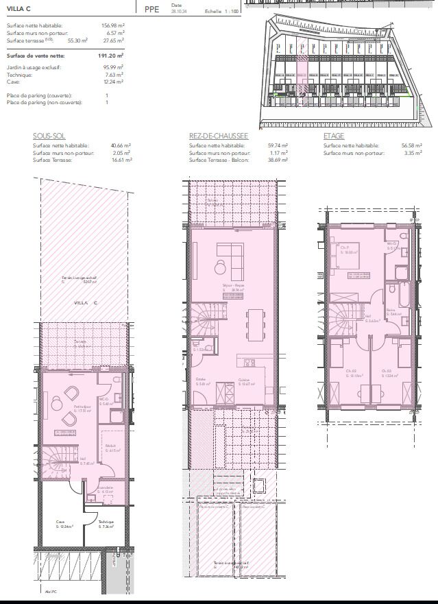
Wohnfläche
157 m²
Grundstücksfläche
96 m²
Terrassenfläche
55.3 m²
Nutzfläche
201 m²
Baujahr
2024
Heizungstyp
Fernheizung
Warmwasseraufbereitung
Solarheizung
Verfügbarkeit
Nach Vereinbarung

Anzahl Parkplätze

Aussen (nicht inkl.)
2
Ich bin interessiertPDF Dossier Projekt-Website

Lage

Distanzen

Ort

Entfernung

zu Fuss

Transport

Auto

Bahnhof 630 m 8 Min. 8 Min. 1 Min.
Öffentliche Verkehrsmittel 110 m 2 Min. 2 Min. -
Primarschule 360 m 6 Min. 6 Min. 1 Min.
Geschäfte 260 m 4 Min. 4 Min. 1 Min.
Restaurants 350 m 11 Min. 11 Min. 2 Min.

Kontakt

Objekt : 1791.C / Angebautes Haus / CH-1791 Courtaman

?
Ich akzeptiere die Bedingungen bezüglich der Datenverarbeitung*
(*) Obligatorische Felder